West Side Brownstone
- Completed:
- 1997
- Team:
- Victoria A. Rospond
Lea H. Cloud
Caryn Brause
Sally Zambrano-Olmo
- Location:
- New York, NY
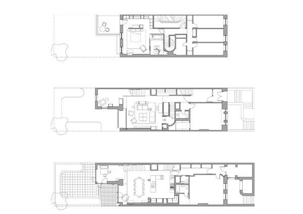
Begun as a master bedroom and bath renovation, this project evolved into the renovation of the entire five-story, 19th century brownstone located on the Upper West Side of Manhattan. The design maintained the parlor level as the public floor with a sculptural wooden stair unspooling down to the dining room, open kitchen and garden below. However, the depth of the floor plate limited both the interior light and the connection to the garden. CDR created a double-heighted connection by cutting back the floor plate which enhanced the spatial quality of the rooms on both levels. Light was also brought into the spaces through new fenestration at the garden façade.
The client is active in many community organizations. Material selections underscore an inviting, warm atmosphere for both communal and private activities. The master bedroom suite, located on the upper level, is a serene space framed by custom millwork and built-in furniture. A new, intimate terrace overlooks the garden. This project is the first of three executed for the same client.